Notice of Public Hearing: A-27-2024
Notice of Public Hearing of Application For Minor Variance, Municipality of Lakeshore Committee of Adjustment
Applicant: Giuseppe D’Ettorre
Location of Subject Property: 1220 Faith Drive
Purpose of Application: Minor Variance
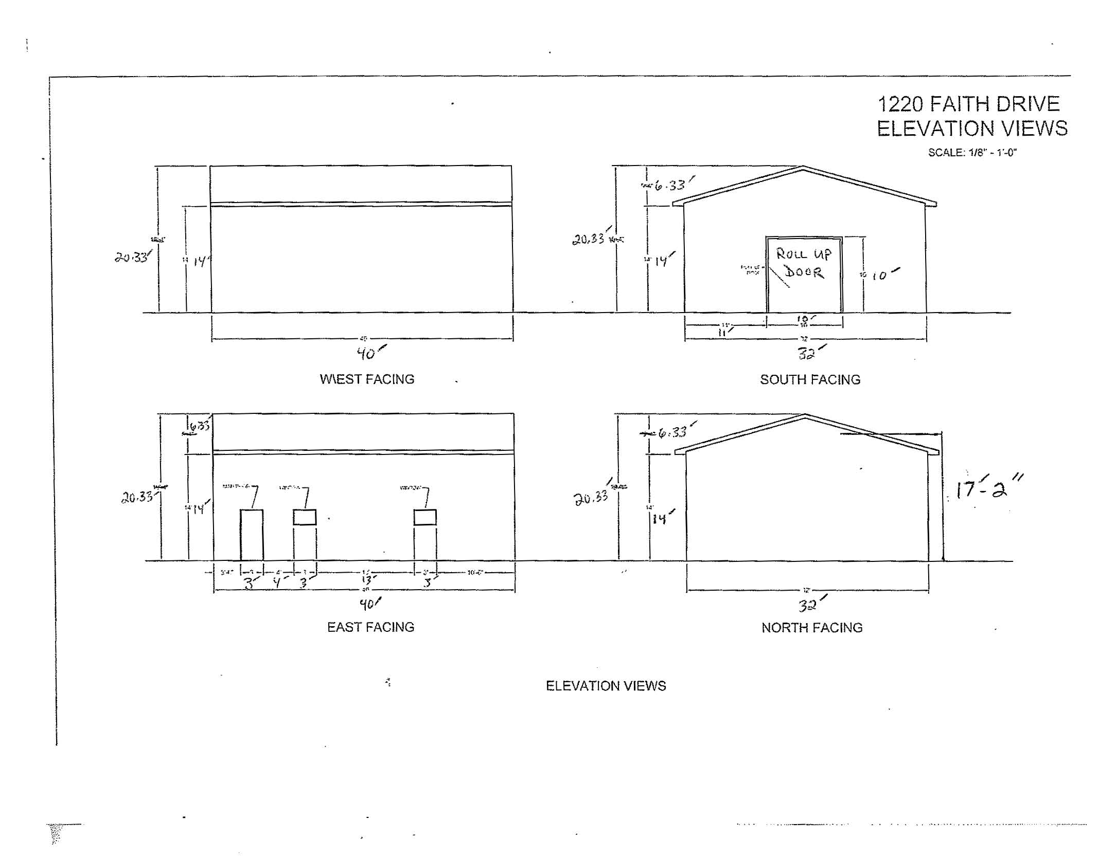
The Applicant is seeking the following reliefs from Lakeshore Zoning By-law (2-2012) for the development of an accessory building on the Subject Property:
- Relief from subsection 6.5 a) ix) to permit an accessory building to have a maximum gross floor area of 118.92 m2 (1,280 ft2), whereas subsection 6.5 a) ix) states that an accessory building shall not exceed a gross floor area of 55 m2, for each accessory building on a lot in an R1, R2, R3, RW1, RW2, RM or HR zone.
- Relief from subsection 6.5 a) xi) to permit an accessory building to have a maximum height of 5.24 metres (17.17 feet), whereas subsection 6.5 a) xi) states that an accessory building shall not exceed 5 metres in height unless with an Agriculture zone.
An aerial photo of the subject property and sketches of the proposal are attached to this notice.
TAKE NOTICE that this application (file: A-27-2024) will be heard by the Committee on the date, time and place shown below:
DATE: September 18th, 2024
TIME: 6:00 pm
LOCATION: 419 Notre Dame St, Belle River (Town Hall – Council Chambers)
This will be a hybrid public meeting where both in person attendance and electronic attendance is supported. There will be opportunities to provide oral input electronically and in person. Providing written comments, prior to a decision being made, is strongly encouraged. Any written comments are requested to be sent to Ian Search (contact information below).
During such a time any person who wishes to attend this Public Meeting electronically and /or speak at this meeting, you will need to register as a delegation for the meeting. Please provide your contact information (name, address, email and phone number) to Planning Services, via email to Ian Search, Planner, at isearch@lakeshore.ca or phone 519-728-1975, ext. 246, no later than the deadline of 24 hours prior to the date and time of the scheduled meeting. Attendees/Delegates will be contacted directly with registration details prior to the meeting.
It is requested that this notice be posted by the owner of any land that contains seven or more residential units in a location that is visible to all of the residents.
Public Hearing
You are entitled to attend this public hearing to express your views about this application or you may be represented by counsel for that purpose. If you are aware of any person interested in or affected by this application who has not received a copy of this notice you are requested to inform that person of this hearing. Any person who does not wish to attend this public hearing, but wishes to provide written comment on the application, can send their comments via email to Ian Search, Planner, at isearch@lakeshore.ca
Failure to Attend Hearing
If you do not attend at the hearing it may proceed in your absence (including possible amendments to the original request) and,
except as otherwise provided in the Planning Act, you will not be entitled to any further notice in the proceedings.
Notice of Decision
If you wish to be notified of the decision of the Municipality of Lakeshore Committee of Adjustment in respect of this application, you must submit a written request to the Municipality of Lakeshore Committee of Adjustment.
Date of Notice: September 4, 2024
Contact Us
Municipality of Lakeshore
419 Notre Dame St.
Belle River, Ontario N8L 0P8
Phone 519-728-2700
Email PublicService@Lakeshore.ca