Notice of Public Meeting: A-02-2026
Notice of Public Hearing of Application For Minor Variance, Municipality of Lakeshore Committee of Adjustment
Applicant: Lakeland Homes Ltd.
Application file number: A-02-2026
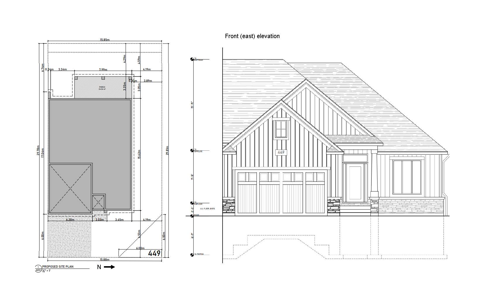
Location of Subject Land: 449 Caserta Crescent
Purpose of Application: Minor Variance
The Applicant is seeking the following reliefs from the Lakeshore Zoning By-law (2-2012) for the development of a townhouse dwelling with a covered porch on the subject land, which is a corner lot:
-
Relief from Subsection 9.2.22 b) viii) to permit the dwelling and covered porch to have a minimum exterior side yard of 4.19 metres, whereas the minimum exterior side yard required is 4.5 metres;
-
Relief from Subsection 6.43 g) to permit the porch (including eaves and cornices) to encroach a maximum of 3.21 metres into the required 7.5 metre rear yard setback (located 4.29 metres from the rear lot line), whereas a maximum encroachment of only 2.5 metres is permitted.
An aerial photo of the Subject Land and drawings of the proposal are attached to this notice.
Take notice that this application (file: A-02-2026) will be heard by the Committee of Adjustment on the date, time and place shown below:
DATE: February 18, 2026
TIME: 6:00 PM
LOCATION: 419 Notre Dame St, Belle River (Town Hall – Council Chambers)
This will be a hybrid public meeting where both in person attendance and electronic attendance is supported. There will be opportunities to provide oral input electronically and in person. Providing written comments, prior to a decision being made, is strongly encouraged. Any written comments are requested to be sent to Ian Search (contact information below).
During such a time any person who wishes to attend this Public Meeting electronically and/or speak at this meeting, it is requested that you register for the meeting. Please provide your contact information (name, address, email and phone number) to Planning Services, via email to Ian Search, Planner, at isearch@lakeshore.ca or phone 519-728-1975, ext. 246, no later than the deadline of 24 hours prior to the date and time of the scheduled meeting.
Those who have registered will be contacted directly with registration details prior to the meeting. It is requested that this notice be posted by the owner of any land that contains seven or more residential units in a location that is visible to all of the residents.
Public Hearing
You are entitled to attend this public hearing to express your views about this application or you may be represented by counsel for that purpose. If you are aware of any person interested in or affected by this application who has not received a copy of this notice you are requested to inform that person of this hearing. Any person who does not wish to attend this public hearing, but wishes to provide written comment on the application, can send their comments via email to Ian Search, Planner, at isearch@lakeshore.ca
Failure to Attend Hearing
If you do not attend at the hearing it may proceed in your absence (including possible amendments to the original request) and, except as otherwise provided in the Planning Act, you will not be entitled to any further notice in the proceedings.
Notice of Decision
If you wish to be notified of the decision of the Municipality of Lakeshore Committee of Adjustment in respect of this application, you must submit a written request to the Municipality of Lakeshore Committee of Adjustment (please contact Ian Search).
Dated this 4th day of February 2026.
Attachments:
Contact Us
Municipality of Lakeshore
419 Notre Dame St.
Belle River, Ontario N8L 0P8
Phone 519-728-2700
Email PublicService@Lakeshore.ca