Notice of Public Meeting: A-12-2025
Notice of Public Hearing of Application For Minor Variance, Municipality of Lakeshore Committee of Adjustment
Applicant: Harrison Young c/o Rick Young
Location of Subject Property:1065 Lakeshore Road 113
Purpose of Application: Minor Variance
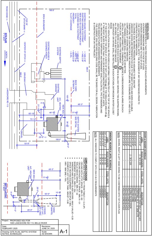
The Applicant is planning on developing an additional residential unit on the Subject Property (1065 Lakeshore Road 113). The additional residential unit will be an independent dwelling that is detached from the existing main dwelling (primary dwelling unit) on the property. The Applicant is seeking the following relief from the Lakeshore Zoning By-law (2-2012) with respect to the gross floor area of the proposed additional residential unit:
-
Relief from Subsection 6.7j) to permit the additional residential unit to be a maximum of 60% of the gross floor area of the existing main dwelling (primary dwelling unit) on the Subject Property, whereas Subsection 6.7 j) states that the gross floor area of an additional residential unit shall not exceed 50% of the gross floor area of the primary dwelling unit.
An aerial photo of the Subject Property and drawings of the proposed development are attached to this notice. The proposed additional residential unit is labelled as “New ADU” on the Site Plan drawing. Elevation drawings of the proposed additional residential unit are also attached.
Take notice that this application (file: A-12-2025) will be heard by the Committee of Adjustment on the date, time and place shown below:
DATE: July 23, 2025
TIME: 6:00 pm
LOCATION: 419 Notre Dame St, Belle River (Town Hall – Council Chambers)
This will be a public meeting where both in person attendance and electronic attendance is supported. There will be opportunities to provide oral input electronically and in person. Providing written comments, prior to a decision being made, is strongly encouraged. Any written comments are requested to be sent to Ian Search (contact information below).
During such a time any person who wishes to attend this Public Meeting electronically and /or speak at this meeting, you will need to register as a delegation for the meeting. Please provide your contact information (name, address, email and phone number) to Planning Services, via email to Ian Search, Planner, at isearch@lakeshore.ca or phone 519-728-1975, ext. 246, no later than the deadline of 24 hours prior to the date and time of the scheduled meeting.
Attendees/Delegates will be contacted directly with registration details prior to the meeting.
It is requested that this notice be posted by the owner of any land that contains seven or more residential units in a location that is visible to all of the residents.
Public Hearing
You are entitled to attend this public hearing to express your views about this application or you may be represented by counsel for that purpose. If you are aware of any person interested in or affected by this application who has not received a copy of this notice you are requestedto inform that person of this hearing. Any person who does not wish to attend this public hearing, but wishes to provide written comment on the application, can send their comments via email to Ian Search, Planner, atisearch@lakeshore.ca
Failure to Attend Hearing
If you do not attend at the hearing it may proceed in your absence (including possible amendments to the original request) and, except as other wise provided in the Planning Act, you will not be entitled to any further notice in the proceedings.
Notice of Decision
If you wish to be notified of the decision of the Municipality of Lakeshore Committee of Adjustment in respect of this application, youmust submit a written request to the Municipality of Lakeshore Committee of Adjustment (please contact Ian Search at isearch@lakeshore.ca).
Dated this 9th day of July 2025.
- Ian William Search Committee of Adjustment,
- Municipality of Lakeshore 419 Notre Dame Street, Belle River Ontario N8L 0P8
- Telephone (519) 728-1975 ext. 246, isearch@lakeshore.ca
Attachments:
Contact Us
Municipality of Lakeshore
419 Notre Dame St.
Belle River, Ontario N8L 0P8
Phone 519-728-2700
Email PublicService@Lakeshore.ca