Skip to main content Skip to footer

Notice of Public Meeting: A-17-2025

Notice of Public Hearing of Application For Minor Variance, Municipality of Lakeshore Committee of Adjustment

Applicant: Victor Neves

Application file number: A-17-2025

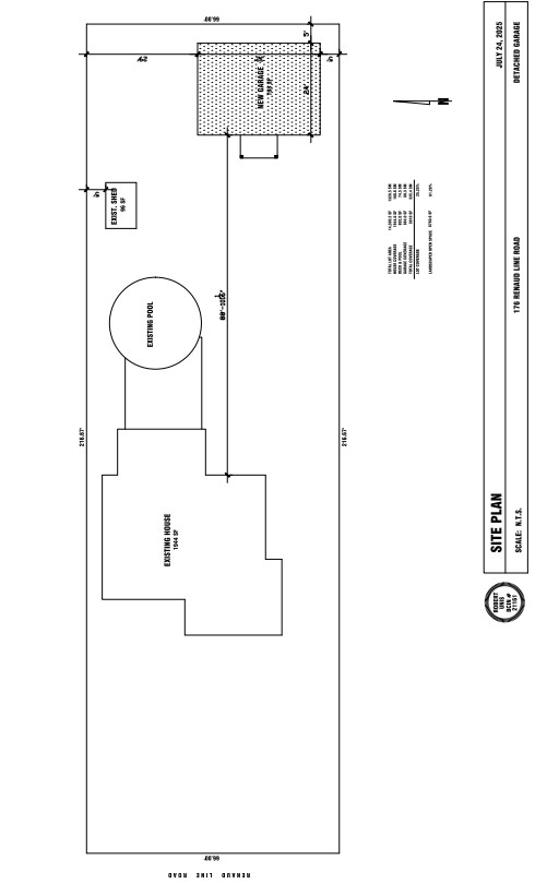
Location of Subject Property: 176 Renaud Line Road

Purpose of Application: Minor Variance

The Applicant is seeking the following relief from Lakeshore Zoning By-law (2-2012) for the development of a new accessory building in the rear yard of the Subject Property:

  • Relief from Subsection 6.5 a) ix) to permit the new accessory building to have a maximum gross floor area of 768 ft2 (71.4 m2); whereas Subsection 6.5 a) ix) states that accessory buildings shall not exceed a gross floor area of 592 ft2 (55 m2) for each accessory building on a lot in an R1, R2, R3, RW1, RW2, RM or HR zone.

An aerial photo of the Subject Property and drawings (site plan and elevations) of the proposed accessory building are attached to this notice.

Take notice that this application (file: A-17-2025) will be heard by the Committee of Adjustment on the date, time and place shown below:

DATE:  September 17, 2025

TIME: 6:00 pm  

LOCATION: 419 Notre Dame St, Belle River (Town Hall – Council Chambers)
This will be a hybrid public meeting where both in person attendance and electronic attendance is supported. There will be opportunities to provide oral input electronically and in person. Providing written comments, prior to a decision being made, is strongly encouraged. Any written comments are requested to be sent to Ian Search (contact information below).

During such a time any person who wishes to attend this Public Meeting electronically and/or speak at this meeting, it is requested that you register for the meeting. Please provide your contact information (name, address, email and phone number) to Planning Services, via email to Ian Search, Planner, at isearch@lakeshore.ca or phone 519-728-1975, ext. 246, no later than the deadline of 24 hours prior to the date and time of the scheduled meeting.

Those who have registered will be contacted directly with registration details prior to the meeting.

It is requested that this notice be posted by the owner of any land that contains seven or more residential units in a location that is visible to all of the residents.

Public Hearing

 You are entitled to attend this public hearing to express your views about this application or you may be represented by counsel for that purpose. If you are aware of any person interested in or affected by this application who has not received a copy of this notice you are requested to inform that person of this hearing. Any person who does not wish to attend this public hearing, but wishes to provide written comment on the application, can send their comments via email to Ian Search, Plannerat isearch@lakeshore.ca

Failure to Attend Hearing

 If you do not attend at the hearing it may proceed in your absence (including possible amendments to the original request) and, except as otherwise provided in the Planning Act, you will not be entitled to any further notice in the proceedings.

Notice of Decision

If you wish to be notified of the decision of the Municipality of Lakeshore Committee of Adjustment in respect of this application, you must submit a written request to the Municipality of Lakeshore Committee of Adjustment (please contact Ian Search).

Dated this 3rd day of September 2025.

  • Ian William Search Committee of Adjustment,
  • Municipality of Lakeshore 419 Notre Dame Street, Belle River Ontario N8L 0P8
  • Telephone (519) 728-1975 ext. 246, isearch@lakeshore.ca

Attachments:

This website uses cookies to enhance usability and provide you with a more personal experience. By using this website, you agree to our use of cookies as explained in our Privacy Policy.