Notice of Public Meeting: A-33-2024, 313 Russel Woods Dr.
Notice of Public Hearing of Application For Minor Variance, Municipality of Lakeshore Committee of Adjustment
Applicant: Joseph Shaban c/o Gino Piccioni
Location of Subject Property: 313 Russel Woods Drive
Purpose of Application: Minor Variance
The Applicant is seeking the following relief from the Lakeshore Zoning By-law (2-2012) for the development of a new dwelling on the Subject Property:
- Relief from Section 8.1 Urban Residential Zone Regulations to permit a maximum lot coverage of 40%, whereas a maximum lot coverage of 35% is permitted in the Residential – Low Density (R1) zone.
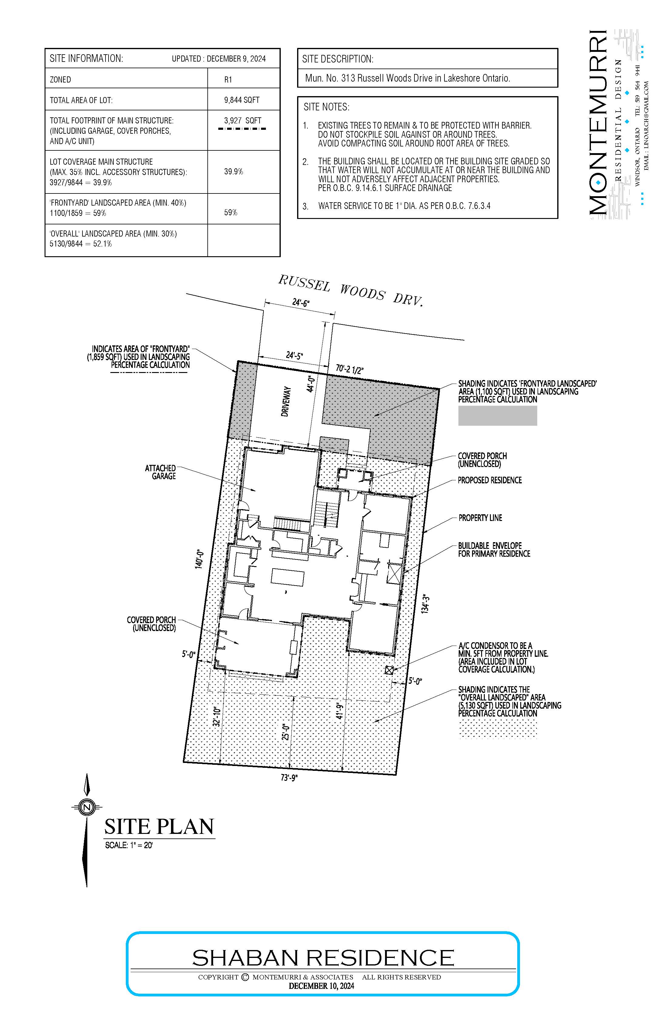
An aerial photo of the subject property and drawings of the proposed development are attached to this notice. Take notice that this application (file: A-33-2024) will be heard by the Committee of Adjustment on the date, time and place shown below:
DATE: January 22nd, 2025
TIME: 6:00 pm
LOCATION: Lakeshore Operations Centre (304 Rourke Line Road, Belle River)
This will be an electronic public meeting with online attendance and participation. Providing written comments before the meeting is strongly encouraged in case there are technical difficulties. Limited in-person attendance will be made available to members of the public who require in person attendance for accessibility. To request in-person attendance please contact Ian Search (contact information below).
Any person who wishes to attend this Public Meeting electronically and/or speak at this meeting, please provide your contact information (name, address, email and phone number) to Planning Services, via email to Ian Search, Planner, at isearch@lakeshore.ca or phone 519-728-1975, ext.
246, no later than the deadline of 24 hours prior to the date and time of the scheduled meeting. Attendees/Delegates will be contacted directly with registration details prior to the meeting.
It is requested that this notice be posted by the owner of any land that contains seven or more residential units in a location that is visible to all of the residents.
Public Hearing
You are entitled to attend this public hearing to express your views about this application or you may be represented by counsel for that purpose. If you are aware of any person interested in or affected by this application who has not received a copy of this notice you are requested to inform that person of this hearing. Any person who does not wish to attend this public hearing, but wishes to provide written comment on the application, can send their comments via email to Ian Search, Planner, at isearch@lakeshore.ca
Failure to Attend Hearing
If you do not attend at the hearing it may proceed in your absence (including possible amendments to the original request) and, except as otherwise provided in the Planning Act, you will not be entitled to any further notice in the proceedings.
Notice of Decision
If you wish to be notified of the decision of the Municipality of Lakeshore Committee of Adjustment in respect of this application, you must submit a written request to the Municipality of Lakeshore Committee of Adjustment. Please make your request by contacting Ian Search via phone or email.
Dated this 8th day of January 2025
- Ian William Search - Planner
- Municipality of Lakeshore, 447 Renaud Line Road, Belle River, ON, N8L 0P8
- (519) 728-1975 ext. 246, isearch@lakeshore.ca
Attachments:
- 313 Russel Woods Dr. - Subject Property Map
- 313 Russel Woods Dr. - Site Plan
- 313 Russel Woods Dr. - Additional Site Plan
Contact Us
Municipality of Lakeshore
419 Notre Dame St.
Belle River, Ontario N8L 0P8
Phone 519-728-2700
Email PublicService@Lakeshore.ca