Notice of Public Meeting: B-03-2026
Notice of Public Hearing, Municipality of Lakeshore
In the Matter Of The Planning Act, R.S.O. 1990, Chapter 1, as amended, and, in the matter of an application for consent by:
Subject Property: Farm parcel adjacent to 1816 Lakeshore Road 123. An aerial photo of the subject property is attached (Legal description: Pt W1/2 Lt 18 Con 3 Rochester; Pt Lt 17 Con 3 Rochester Pt 1-3 12R7432 Except Pt 1, 2 12R11566; Lakeshore; S/T Oil and Gas Rights as in CE55837)
Applicant: Vincent Byrne c/o Jake Chevalier
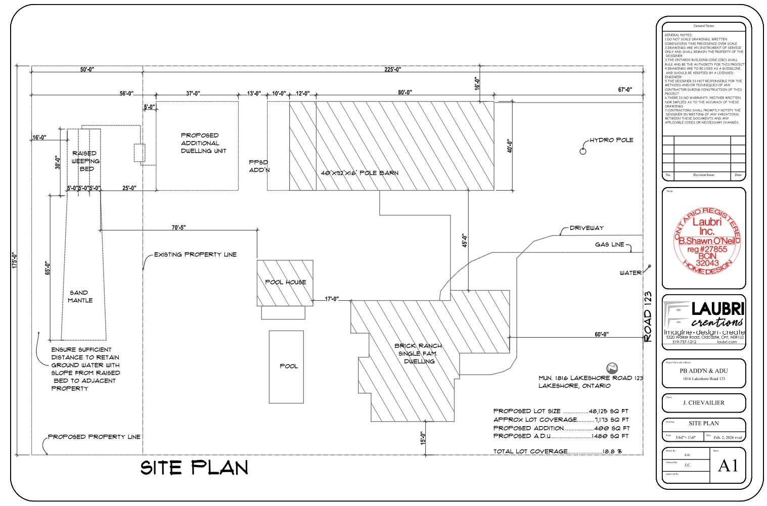
Purpose of Application: An application has been made to transfer 8,750 ft2 (813 m2) of land to 1816 Lakeshore Road 123 from the subject property. The land transfer will extend the depth of 1816 Lakeshore Road 123 by 50 feet (15.24 metres).
The land addition parcel is proposed to accommodate the private servicing system of a future additional residential unit that is planned to be developed on 1816 Lakeshore Road 123.
A map showing the location of the subject property and a sketch of the land addition are attached to this notice.
Take notice that an application under the above file number will be heard by the Committee of Adjustment on the date, time and place shown below:
DATE: March 25, 2026
TIME: 6:00 pm
LOCATION: 419 Notre Dame St, Belle River (Town Hall – Council Chambers)
This will be a public meeting where both in person attendance and electronic attendance is supported. There will be opportunities to provide oral input electronically and in person. Providing written comments, prior to a decision being made, is strongly encouraged.
During such a time any person who wishes to attend this Public Meeting electronically and /or speak at this meeting, you will need to register as a delegation for the meeting. Please provide your contact information (name, address, email and phone number) to Community Planning, via email to Ian Search, Planner, at isearch@lakeshore.ca or phone 519-728-1975, ext. 246, no later than the deadline of 24 hours prior to the date and time of the scheduled meeting. Attendees/Delegates will be contacted directly with registration details prior to the meeting.
- This is a Public Meeting called for the purpose of hearing evidence in support of or in opposition to the above-noted application for severance.
- Further information on this application may be obtained by contacting the undersigned. If you have comments on this application, they may be sent to Ian Search by emailing isearch@lakeshore.ca or submitted in person by appointment. Your comments will then be conveyed to the Committee of Adjustment members for consideration at the meeting. Please note that comments received will be shared with the Applicant.
- If a person or public body has the ability to appeal the decision of the Committee of Adjustment in respect of the proposed consent to the Ontario Land Tribunal but does not make written submissions to the Committee of Adjustment before it gives or refuses to give a provisional consent, the Tribunal may dismiss the appeal.
- If you wish to be notified of the decision of the Committee of Adjustment in respect of the proposed consent, you must make a written request to the Committee of Adjustment by contacting Ian Search (Secretary-Treasurer). Please see contact details below. It is requested that this notice be posted by the owner of any land that contains seven or more residential units in a location that is visible to all of the residents.
Date of Notice: March 11, 2026
Attachments:
Contact Us
Municipality of Lakeshore
419 Notre Dame St.
Belle River, Ontario N8L 0P8
Phone 519-728-2700
Email PublicService@Lakeshore.ca