Notice of Public Meeting / Complete Application - ZBA-17-2024 - 12100 Lakeshore Road 303
Municipality Of Lakeshore
Notice of Public Meeting/ Complete Application Zoning By-law Amendment
File Number: ZBA-17-2024
Subject Property: 12100 Lakeshore Road 303
Applicants: Michael Roger Mailloux and Jocelyne Florence Mailloux
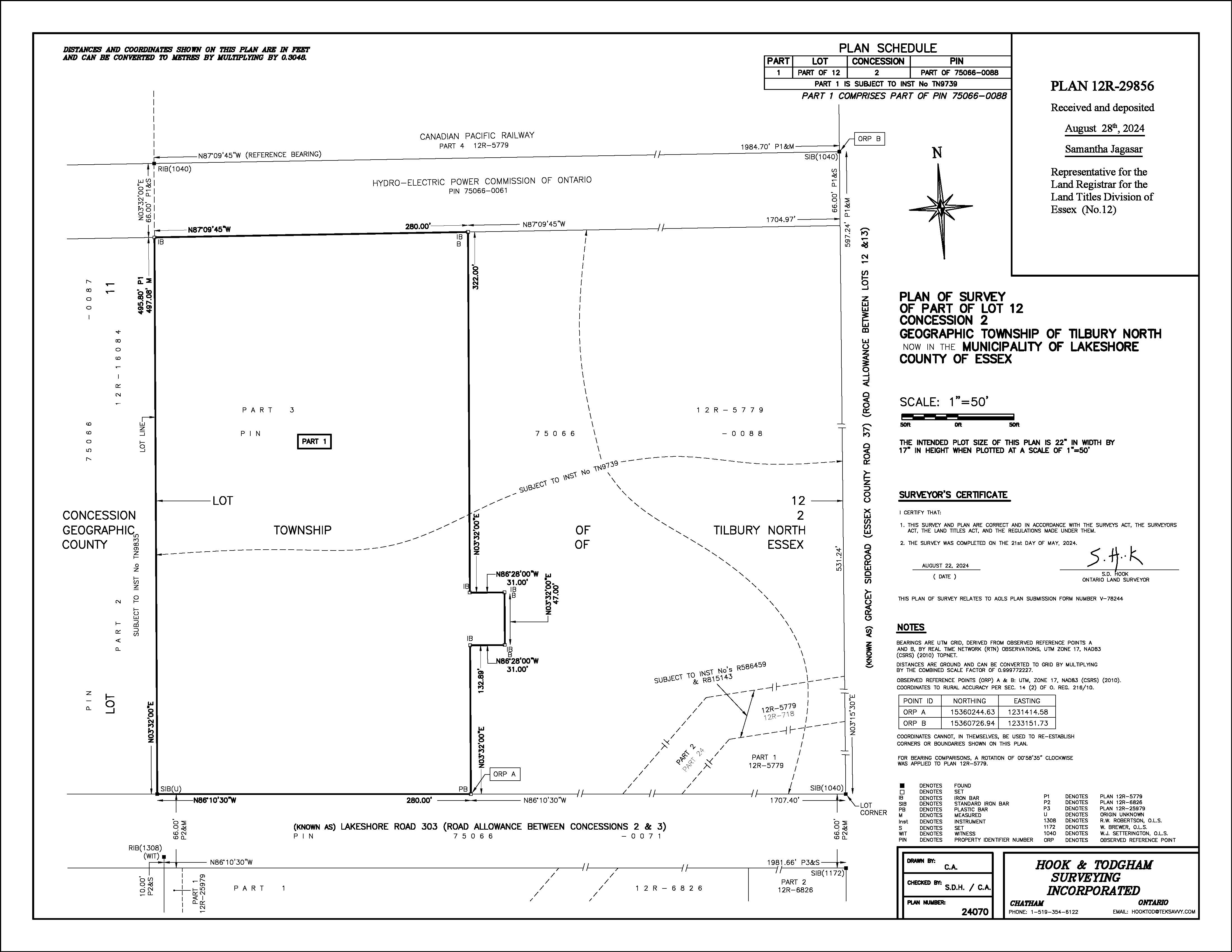
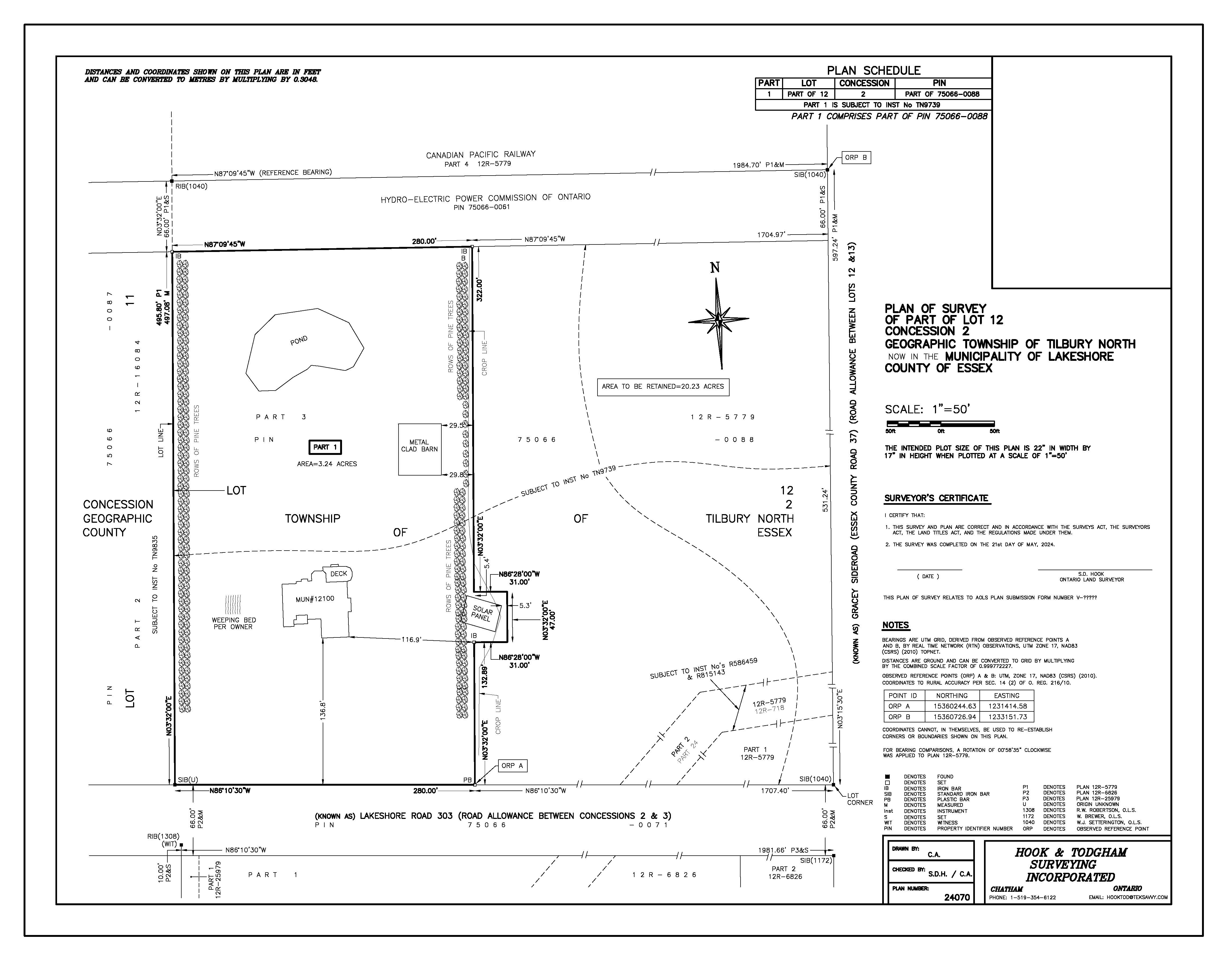
Purpose: A provisional consent (file: B-01-2024) was granted from the Lakeshore Committee of Adjustment to sever an existing dwelling from the Subject Property as a separate residential lot. The dwelling is rendered surplus to the needs of the Applicant due to farm consolidation.
Part 1 on Plan 12R-29856 (registered plan of survey) is the lot being severed. Attached to this notice is a copy of the registered plan of survey and the draft survey showing this lot in detail.
As a condition of their consent approval from the Committee of Adjustment, the applicants are applying to rezone the Subject Property to prohibit any new dwelling(s) and additional residential unitson the retained farmland. Additionally, the Applicants are applying to rezone the retained farmland to recognize its deficient area (8.1 hectares) following the severance. The Lakeshore Zoning By-law 2-2012 requires a farm parcel to have a minimum lot area of 19 hectares. A sketch detailing the lot to be severed, and the retained farmland, is attached to this notice.
Council Meeting: Tuesday November 19th, 2024, at 6:00 PM, or as practical thereafter.
Meeting Location: This will be a hybrid meeting with limited in person attendance at Town Hall (419 Notre Dame Street, Belle River, Ontario, N8L 0P8).
To participate in the meeting online or in person, it is recommended that you complete the ‘Delegation Request Form’ on our website. If you wish to simply watch the meeting, visit Lakeshore.ca/Tv
If you wish to provide your comments on the matter, it is strongly encouraged to write an email or written correspondence, prior to a decision being made.
Take Notice that Council will consider an amendment to Lakeshore Zoning By-law 2-2012, as amended (File: ZBA-17-2024), under Section 34of the Planning Act, R.S.O.1990, c.P.13.
Additional Information relating to this matter is available for review at the Municipal Office during regular office hours.
Any Person may make written representation in support of or in opposition to the proposed amendment. Written submission regarding the proposed application can be made to the attention of Ian Search, Planner I, Municipality of Lakeshore, Community Planning Office, 419 Notre Dame Street, Belle River, Ontario, N8L 0P8, or email isearch@lakeshore.ca. Any person looking to make a verbal submission must register to speak at Lakeshore.ca/Delegations
If you wish to be notified of the decision of the Municipality of Lakeshore on the proposed Zoning By-law amendment (ZBA-17-2024), you must make a written request to the attention of Ian Search, Planner I, Municipality of Lakeshore, 419 Notre Dame Street, Belle River, Ontario, N8L 0P8, or email isearch@lakeshore.ca.
If A Person Or Public Body would otherwise have an ability to appeal the decision of the Municipality of Lakeshore to the Ontario Land Tribunal but the person or public body does not make oral submissions at a public meeting or make written submissions to the Municipal Clerk of the Municipality of Lakeshore before the proposed Zoning By-law Amendment is passed, the person or public body is not entitled to appeal the decision.
If A Person Or Public Body does not make oral submissions at a public meeting or make written submissions to the Municipal Clerk of the Municipality of Lakeshore before the proposed Zoning By-law Amendment is passed, the person or public body may not be added as a party to the hearing of an appeal before the Ontario Land Tribunal unless, in the opinion of the Tribunal, there are reasonable grounds to do so. It is requested that this notice be posted by the owner of any land that contains seven or more residential units in a location that is visible to all of the residents.
Dated at the Municipality of Lakeshore this October 11th, 2024.
Contact Us
Municipality of Lakeshore
419 Notre Dame St.
Belle River, Ontario N8L 0P8
Phone 519-728-2700
Email PublicService@Lakeshore.ca