Skip to main content Skip to footer

Notice of Public Meeting / Complete Application: ZBA-18-2024, 355, 347, 358, 476 and 475 Marla Cres

Municipality Of Lakeshore, Notice of Public Meeting/Complete Application, Zoning By-law Amendment

File Number: ZBA-18-2024
Applicant: Harold Kersey
Location of Property: PART OF LOT 4, CONCESSION EAST OF PUCE RIVER

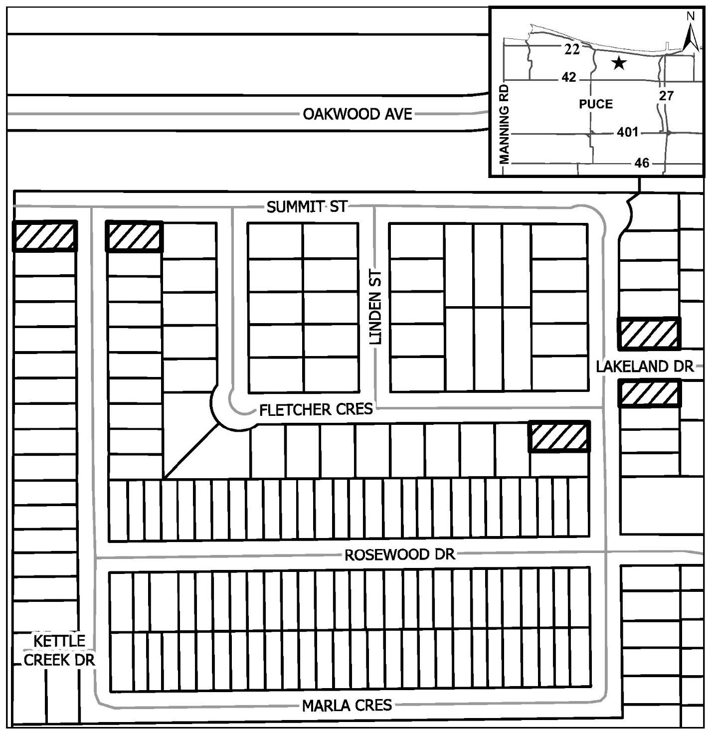
Purpose of Meeting: A Zoning By-law Amendment application was received for vacant lots within Registered Plan of Subdivision 12M-698 on the lands formerly known as 347 Renaud Line Road, legally described as PART OF LOT 4, CONCESSION EAST OF PUCE RIVER, MUNICIPALITY OF LAKESHORE, COUNTY OF ESSEX, ONTARIO. The subject lands are designated “Residential” in the Lakeshore Official Plan and zoned as “Medium Density (R2)” under the Lakeshore Zoning By-law 2-2012. 

The applicant wishes to amend the Zoning By-law to reduce the Minimum Exterior Side Yard setback requirement in the R2 zone from 4.5m to 3.5m for single-detached dwellings, and to increase the Maximum Lot Coverage requirement in the R2 zone from 35% to 40% for single-detached dwellings. The affected lots are Lot 4, Lot 5, Lot 27, Lot 53 and Lot 72 within Registered Plan of Subdivision 12M-698, municipally known as 355 Marla Crescent, 347 Marla Crescent, 358 Marla Crescent, 476 Marla Crescent and 475 Marla Crescent (refer to image attached).

Council will consider the proposed amendment to Lakeshore Zoning By-law 2-2012, as amended (File: ZBA-16-2023), under Section 34 of the Planning Act, R.S.O.1990, c.P.13.

Council Meeting Date: Tuesday, February 4, 2025, at 6:00 p.m. or as practical thereafter.

Meeting Location: This will be a Hybrid Meeting with limited in-person attendance at Town Hall, 419 Notre Dame St, Belle River, ON N8L 0P8.

To participate in this meeting virtually or in person, please complete the ‘Delegation Request Form’ which can be found at Lakeshore.ca/Delegations

The meeting can also be observed by joining online at Lakeshore.ca/Tv.

Written Comments & Decision Notification: Any person may make written representation in support of or in opposition to the proposed amendment. If you wish to make written comments or be notified of the decision of the Municipality of Lakeshore, you must make a written request to the attention of:

  • Urvi Prajapati, Team Leader - Community Planning
  • Municipality of Lakeshore, 419 Notre Dame Street Belle River, ON N8L 0P8
  • Or by emailing planning@lakeshore.ca

Your comments on these matters are important. If you wish to provide comments, it is strongly encouraged to write an email or written correspondence, prior to a decision being made.

Right to Appeal: If a person or public body would otherwise have an ability to appeal the decision of the Municipality of Lakeshore to the Ontario Land Tribunal but the person or public body does not make oral submissions at a public meeting or make written submissions to the Municipal Clerk of the Municipality of Lakeshore before the proposed Zoning By-law Amendment is passed, the person or public body is not entitled to appeal the decision.

If a person or public body does not make oral submissions at a public meeting or make written submissions to the Municipal Clerk of the Municipality of Lakeshore before the proposed Zoning By-law Amendment is passed, the person or public body may not be added as a party to the hearing of an appeal before the Ontario Land Tribunal unless, in the opinion of the Tribunal, there are reasonable grounds to add the person or public body as a party.

Dated at the Municipality of Lakeshore this December 10, 2024

Attachments:

This website uses cookies to enhance usability and provide you with a more personal experience. By using this website, you agree to our use of cookies as explained in our Privacy Policy.