Notice of Public Meeting / Complete Application: ZBA-19-2024, 492 County Rd. 8
Municipality Of Lakeshore, Notice of Public Meeting/ Complete Application, Zoning By-law Amendment
File Number: ZBA-19-2024
Subject Property: 492 County Road 8 (aerial map is attached to this notice)
Applicants: Greater Essex County District School Board c/o Brad Teichman
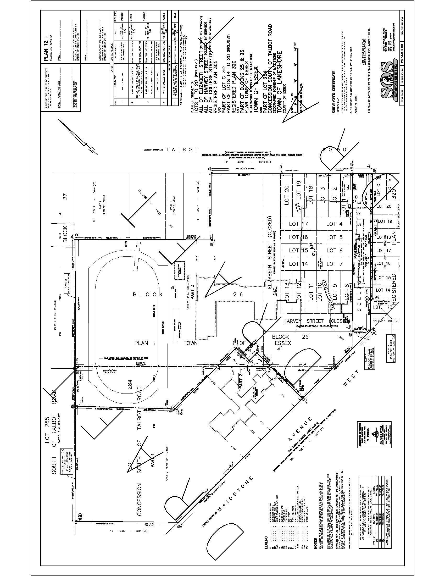
Purpose: A provisional consent (file: B-12-2023) was granted from the Lakeshore Committee of Adjustment to sever a 7.15 acre parcel of land from the Subject Property that has 200.1 metres (656.5 feet) of frontage along County Road 8. The parcel of land to be severed currently contains a vacant elementary school.
Part 1 on the attached draft Plan of Survey is the parcel of land to be severed and the plan details the location of the vacant elementary school on that parcel of land. In addition, an aerial photo showing the parcel of land to be severed is attached to this notice.
As a condition of their severance approval from the Committee of Adjustment, the applicants are applying for a Zoning By-law Amendment to rezone the parcel of land that is to be severed. The parcel is currently zoned Major Institutional (I1). The Zoning By-law Amendment will add a holding symbol to the zoning so that only existing uses are permitted on the parcel until the holding symbol is removed, with the condition for removal of the holding symbol being confirmation of servicing and servicing capacity from the Town of Essex and any necessary development approval.
Council Meeting: Tuesday February 4th, 2025, at 6:00 PM, or as practical thereafter.
Meeting Location: This will be a hybrid meeting with limited in person attendance at Town Hall (419 Notre Dame Street, Belle River, Ontario, N8L 0P8). To participate in the meeting online or in person, it is recommended that you complete the ‘Delegation Request Form’ on our website. If you wish to simply watch the meeting, Lakeshore.ca/TV. If you wish to provide your comments on the matter, it is strongly encouraged to write an email/written correspondence, prior to a decision being made.
Take Notice that Council will consider an amendment to Lakeshore Zoning By-law 2-2012, as amended (File: ZBA-19-2024), under Section 34 of the Planning Act, R.S.O.1990, c.P.13.
Additional Information relating to this matter is available for review at the Atlas Tube Recreation Centre (447 Renaud Line Road, Belle River, ON) during regular office hours by appointment. Please contact Ian Search (Planner), by emailing isearch@lakeshore.ca or phone 519-728-1975 ext. 246.
Any Person may make written representation in support of or in opposition to the proposed amendment. Written submission regarding the proposed application can be made to the attention of Ian Search (Planner) by emailing isearch@lakeshore.ca. A written comment by mail can be addressed to “Community Planning Department” (not a specific individual), 419 Notre Dame Street, Belle River, Ontario, N8L 0P8. Any person looking to make a verbal submission should register to speak at Lakeshore.ca/Delegations at least 24 hours before the meeting date.
If you wish to be notified of the decision of the Municipality of Lakeshore on the proposed Zoning Bylaw Amendment (ZBA-19-2024), you must make a written request to the attention of Ian Search (Planner) by emailing isearch@lakeshore.ca. A written request by mail can be addressed to “Community Planning Department” (not a specific individual), 419 Notre Dame Street, Belle River, Ontario, N8L 0P8.
If A Person Or Public Body would otherwise have an ability to appeal the decision of the Municipality of Lakeshore to the Ontario Land Tribunal but the person or public body does not make oral submissions at a public meeting or make written submissions to the Municipality of Lakeshore before the proposed Zoning By-law Amendment is passed, the person or public body is not entitled to appeal the decision.
If A Person Or Public Body does not make oral submissions at a public meeting or make written submissions to the Municipality of Lakeshore before the proposed Zoning By-law Amendment is passed, the person or public body may not be added as a party to the hearing of an appeal before the Ontario Land Tribunal unless, in the opinion of the Tribunal, there are reasonable grounds to do so. It is requested that this notice be posted by the owner of any land that contains seven or more residential units in a location that is visible to all of the residents.
Dated at the Municipality of Lakeshore this January 15th, 2025.
Attachments:
Contact Us
Municipality of Lakeshore
419 Notre Dame St.
Belle River, Ontario N8L 0P8
Phone 519-728-2700
Email PublicService@Lakeshore.ca