Skip to main content Skip to footer

Notice of Public Meeting: ZBA-02-2025

Municipality Of Lakeshore, Notice of Public Meeting/Complete Application

Zoning By-law Amendment

File Number: ZBA-02-2025

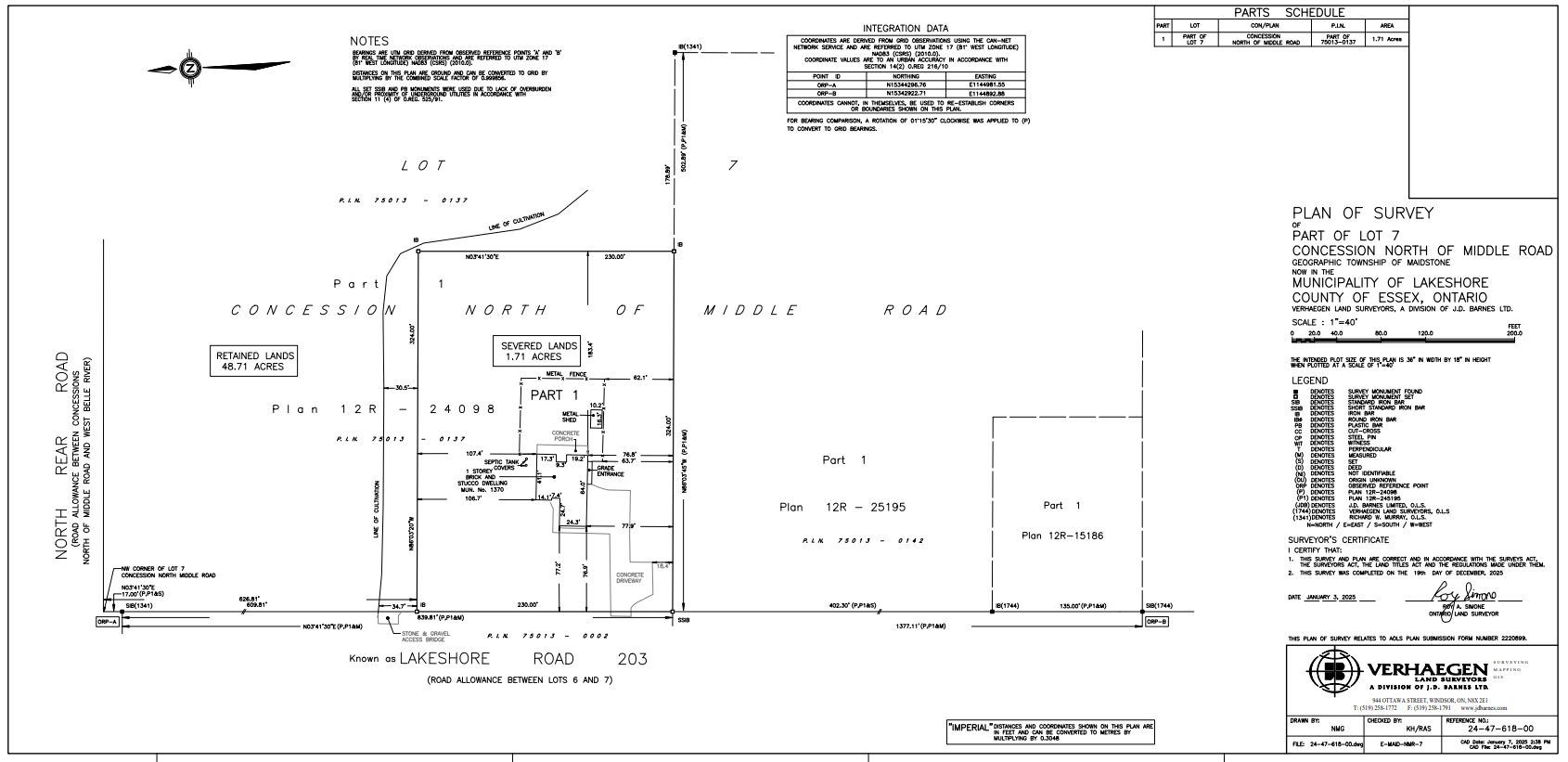
Subject Property: 1370 Lakeshore Road 203

Applicants: Lloyd Phillips

Purpose: A provisional consent (file: B-09-2024) was granted from the Lakeshore Committee of Adjustment to sever an existing dwelling and its accessory uses from the Subject Property as a separate residential lot. The dwelling is considered surplus to a farming operation.

Attached to this notice is a copy of a plan of survey that details the residential lot to be severed from the Subject Property.

As a condition of their consent (severance) approval from the Committee of Adjustment, the applicant is applying to rezone the Subject Property to prohibit any new dwelling(s) and additional residential units on the retained farmland parcel.

A sketch detailing the lot to be severed, and the retained farmland, is attached to this notice.

Council Meeting: Tuesday July 8th, 2025, at 6:00 PM, or as practical thereafter.

Meeting Location: This will be a hybrid meeting with limited in person attendance at Town Hall (419 Notre Dame Street, Belle River, Ontario, N8L 0P8). To participate in the meeting online or in person, it is recommended that you complete the ‘Delegation Request Form’ on our website.

If you wish to simply watch the meeting, visit www.lakeshore.ca/tv.

If you wish to provide your comments on the matter, it is strongly encouraged to write an email or written correspondence, prior to a decision being made.

Take Notice that Council will consider an amendment to Lakeshore Zoning By-law 2-2012, as amended (File: ZBA-02-2025), under Section 34of the Planning Act, R.S.O.1990, c.P.13.  

Additional Information relating to this matter is available for review at the Municipal Office during regular office hours. 

Any Person may make written representation in support of or in opposition to the proposed amendment. Written submission regarding the proposed application can be made to the attention of Ian Search, Planner I, Municipality of Lakeshore, Community Planning Office, 419 Notre Dame Street, Belle River, Ontario, N8L 0P8, or email isearch@lakeshore.ca. Any person looking to make a verbal submission must register to speak at Lakeshore.ca/Delegations. 

If you wish to be notified of the decision of the Municipality of Lakeshore on the proposed Zoning By-law amendment (ZBA-02-2025), you must make a written request to the attention of Ian Search, Planner I, Municipality of Lakeshore, 419 Notre Dame Street, Belle River, Ontario, N8L 0P8, or email isearch@lakeshore.ca. 

If A Person Or Public Body would otherwise have an ability to appeal the decision of the Municipality of Lakeshore to the Ontario Land Tribunal but the person or public body does not make oral submissions at a public meeting or make written submissions to the Municipal Clerk of the Municipality of Lakeshore before the proposed Zoning By-law Amendment is passed, the person or public body is not entitled to appeal the decision.  

If A Person Or Public Body does not make oral submissions at a public meeting or make written submissions to the Municipal Clerk of the Municipality of Lakeshore before the proposed Zoning By-law Amendment is passed, the person or public body may not be added as a party to the hearing of an appeal before the Ontario Land Tribunal unless, in the opinion of the Tribunal, there are reasonable grounds to do so.It is requested that this notice be posted by the owner of any land that contains seven or more residential units in a location that is visible to all of the residents. 

Dated at the Municipality of Lakeshore this June 18th, 2025. 

Attachments:

This website uses cookies to enhance usability and provide you with a more personal experience. By using this website, you agree to our use of cookies as explained in our Privacy Policy.