Skip to main content Skip to footer

Notice of Public Meeting: ZBA-04-2025

Notice of Public Meeting, Municipality of Lakeshore

In the matter of the Planning Act, R.S.O. 1990, Chapter 1, as amended, and, in the matter of an application for consent by:

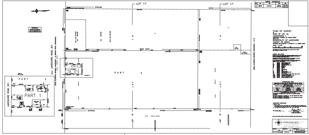
Subject Property: 16325 Lakeshore Road 301

Applicant(s): Gary Sylvestre

Purpose of Application: A land severance (file: B-08-2024) was granted from the Lakeshore Committee of Adjustment to sever an existing dwelling and accessory buildings/structures from the Subject Property as a separate residential lot. The dwelling is considered surplus to a farming operation.

Attached to this notice is a copy of a plan of survey that details the residential lot to be severed from the Subject Property.

As a condition of their land severance approval from the Committee of Adjustment, the applicant is applying to rezone the Subject Property to prohibit
any new dwelling(s) and additional residential units on the retained farmland parcel.

A sketch detailing the retained farmland parcel (labelled as “16325 Lakeshore Rd 301 Retained Land” on the sketch) to be rezoned is attached to this notice.

Take notice that an application under the above file number will be heard by the Committee on the date, time and place shown below:

DATE: August 12, 2025

TIME: 6:00 pm

LOCATION: This will be a hybrid meeting with limited in person attendance at Town Hall (419 Notre Dame Street, Belle River, Ontario, N8L 0P8). To participate in the meeting online or in person, it is recommended that you complete the ‘Delegation Request Form’ on our website. If you wish to simply watch the meeting online, visit www.lakeshore.ca/tv. If you wish to provide your comments on the matter, it is strongly encouraged to write an email or written correspondence, prior to a decision being made.

Take Notice that Council will consider an amendment to Lakeshore Zoning By-law 2-2012, as amended (File: ZBA-04-2025), under Section 34 of the Planning Act, R.S.O.1990, c.P.13.

Additional Information relating to this matter is available for review at the Municipal Office during regular office hours (Atlas Tube Recreation Centre: 447 Renaud Line Road, Belle River, ON).

Any Person may make written representation in support of or in opposition to the proposed amendment. Written submission regarding the proposed application can be made to the attention of Ian Search, Planner I, Municipality of Lakeshore, Community Planning Office, 419 Notre Dame Street, Belle River, Ontario, N8L 0P8, or email isearch@lakeshore.ca. Any person looking to make a verbal submission must register to speak at Lakeshore.ca/Delegations.

If you wish to be notified of the decision of the Municipality of Lakeshore on the proposed Zoning Bylaw amendment (ZBA-04-2025), you must make a written request to the attention of Ian Search, Planner I, Municipality of Lakeshore, 419 Notre Dame Street, Belle River, Ontario, N8L 0P8, or email isearch@lakeshore.ca.

If A Person Or Public Body would otherwise have an ability to appeal the decision of the Municipality of Lakeshore to the Ontario Land Tribunal but the person or public body does not make oral submissions at a public meeting or make written submissions to the Municipal Clerk of the Municipality of Lakeshore before the proposed Zoning By-law Amendment is passed, the person or public body is not entitled to appeal the decision.

If A Person Or Public Body does not make oral submissions at a public meeting or make written submissions to the Municipal Clerk of the Municipality of Lakeshore before the proposed Zoning By-law Amendment is passed, the person or public body may not be added as a party to the hearing of an appeal before the Ontario Land Tribunal unless, in the opinion of the Tribunal, there are reasonable grounds to do so. It is requested that this notice be posted by the owner of any land that contains seven or more residential units in a location that is visible to all of the residents.

Date of Notice: July 16th, 2025

  • Ian William Search - Planner
  • Municipality of Lakeshore, 447 Renaud Line Road, Belle River, ON, N8L 0P8
  • (519) 728-1975 ext. 246, isearch@lakeshore.ca

Attachments

ZBA-04-2025 - Subject Property Map
ZBA-04-2025 - Subject Property Map (2)
ZBA-04-2025 - Subject Property Map (3)

This website uses cookies to enhance usability and provide you with a more personal experience. By using this website, you agree to our use of cookies as explained in our Privacy Policy.