Skip to main content Skip to footer

Notice of Public Meeting: ZBA-06-2025

Notice of Public Meeting/ Complete Application, Zoning By-law Amendment  

File Number: ZBA-06-2025 

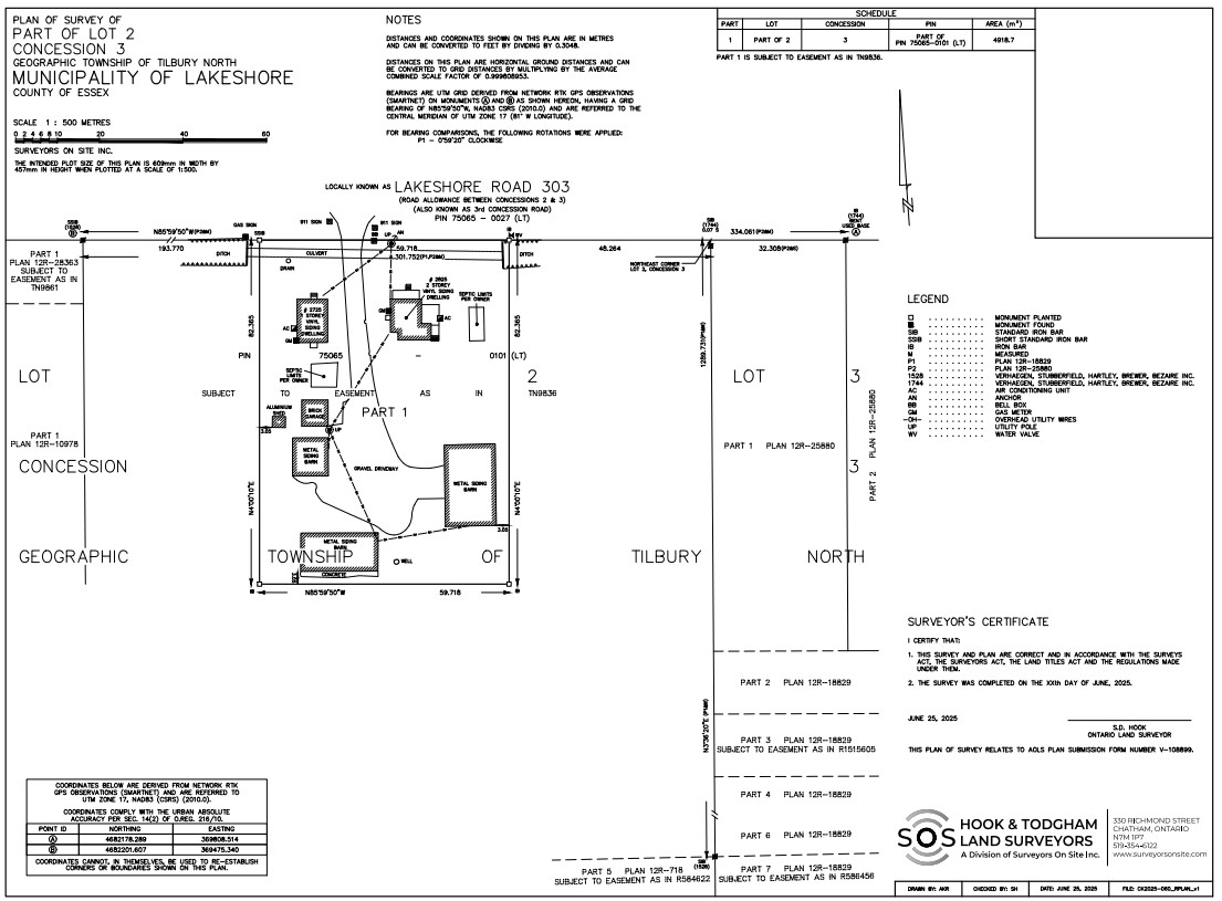
Subject Property: 2825 Lakeshore Road 303  

Applicant: Mike Mailloux 

Purpose: A land severance (file: B-05-2025) was granted from the Lakeshore Committee of Adjustment to sever two existing dwellings and accessory structures from the Subject Property as a separate residential lot. The dwellings are considered surplus to a farming operation.  

Attached to this notice is a copy of a plan of survey that details the residential lot to be severed from the Subject Property. 

As a condition of their land severance approval from the Committee of Adjustment, the applicant is applying to rezone the remnant farmland parcel to prohibit new dwelling(s) and additional residential units(s) on the remnant farmland parcel. In addition, the residential lot being severed will be rezoned to recognize the two existing single detached dwellings on the severed lot as a legal use.  

A sketch detailing the remnant farmland parcel (labelled as “2825 Lakeshore Road 303” on the sketch) to be rezoned is attached to this notice. The sketch also details the severed lot (labelled as “Severed Lot”) that is to be rezoned. 

Council Meeting: Tuesday, October 7th, 2025, at 6:00 PM, or as practical thereafter. 

Meeting Location: This will be a hybrid meeting with limited in person attendance at Town Hall (419 Notre Dame Street, Belle River, Ontario, N8L 0P8). To participate in the meeting online or in person, it is recommended that you complete the ‘Delegation Request Form’ on our website. If you wish to simply watch the meeting online, visit lakeshore.ca/tv. If you wish to provide your comments on the matter, it is strongly encouraged to write an email or written correspondence, prior to a decision being made. 

Take Notice that Council will consider an amendment to Lakeshore Zoning By-law 2-2012, as amended (File: ZBA-06-2025), under Section 34 of the Planning Act, R.S.O.1990, c.P.13.  

 Additional Information relating to this matter is available for review at the Municipal Office during regular office hours (Atlas Tube Recreation Centre: 447 Renaud Line Road, Belle River, ON). 

 Any Person may make written representation in support of or in opposition to the proposed amendment. Written submission regarding the proposed application can be made to the attention of Ian Search, Planner I, Municipality of Lakeshore, Community Planning Office, 419 Notre Dame Street, Belle River, Ontario, N8L 0P8, or email isearch@lakeshore.ca. Any person looking to make a verbal submission must register to speak at Lakeshore.ca/Delegations. 

If you wish to be notified of the decision of the Municipality of Lakeshore on the proposed Zoning By-law amendment (ZBA-06-2025), you must make a written request to the attention of Ian Search, Planner I, Municipality of Lakeshore, 419 Notre Dame Street, Belle River, Ontario, N8L 0P8, or email isearch@lakeshore.ca. 

If A Person Or Public Body would otherwise have an ability to appeal the decision of the Municipality of Lakeshore to the Ontario Land Tribunal but the person or public body does not make oral submissions at a public meeting or make written submissions to the Municipal Clerk of the Municipality of Lakeshore before the proposed Zoning By-law Amendment is passed, the person or public body is not entitled to appeal the decision.  

If A Person Or Public Body does not make oral submissions at a public meeting or make written submissions to the Municipal Clerk of the Municipality of Lakeshore before the proposed Zoning By-law Amendment is passed, the person or public body may not be added as a party to the hearing of an appeal before the Ontario Land Tribunal unless, in the opinion of the Tribunal, there are reasonable grounds to do so. It is requested that this notice be posted by the owner of any land that contains seven or more residential units in a location that is visible to all of the residents. 

Dated at the Municipality of Lakeshore this September 17th, 2025. 

Attachments:

This website uses cookies to enhance usability and provide you with a more personal experience. By using this website, you agree to our use of cookies as explained in our Privacy Policy.