Notice of Public Meeting: ZBA-11-2025
Municipality Of Lakeshore, Notice of Public Meeting/Complete Application
Zoning By-law Amendment
File Number: ZBA-11-2025
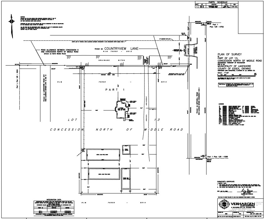
Subject Property: 1078 Countryview Lane
Applicant: Alicia Chevalier
Purpose: A land severance (file: B-02-2025) was granted from the Lakeshore Committee of Adjustment to sever the existing dwelling and accessory buildings/structures from the Subject Property as a separate residential lot. The dwelling is surplus to a farming operation.
Attached to this notice is a copy of a plan of survey that details the residential lot to be severed from the Subject Property (indicated as “Part 1”).
As a condition of their land severance approval from the Committee of Adjustment, the applicant is applying to rezone the remnant farmland parcel to prohibit new dwelling(s) and additional residential units(s) on the remnant farmland parcel. A sketch detailing the remnant farmland parcel to be rezoned, labelled as “1078 Countryview Lane Retained Land” on the sketch, is attached to this notice.
Council Meeting: Tuesday November 18th, 2025, at 6:00 PM, or as practical thereafter.
Meeting Location: This will be a hybrid meeting with limited in person attendance at Town Hall (419 Notre Dame Street, Belle River, Ontario, N8L 0P8).
To participate in the meeting online or in person, it is recommended that you complete the ‘Delegation Request Form’ on our website.
If you wish to simply watch the meeting online, visit www.lakeshore.ca/tv.
If you wish to provide your comments on the matter, it is strongly encouraged to write an email or written correspondence, prior to a decision being made.
Take Notice that Council will consider an amendment to Lakeshore Zoning By-law 2-2012, as amended (File: ZBA-11-2025), under Section 34 of the Planning Act, R.S.O.1990, c.P.13.
Additional Information relating to this matter is available for review at the Municipal Office during regular office hours. Please contact Ian Search at isearch@lakeshore.ca or phone 519-728-1975 ext. 246 to make an appointment.
Any Person may make written representation in support of or in opposition to the proposed amendment. Written submission regarding the proposed application can be made to the attention of Ian Search, Planner I, Municipality of Lakeshore, Community Planning Office, 419 Notre Dame Street, Belle River, Ontario, N8L 0P8, or email isearch@lakeshore.ca. Any person looking to make a verbal submission must register to speak at Lakeshore.ca/Delegations.
If you wish to be notified of the decision of the Municipality of Lakeshore on the proposed Zoning By- law amendment (ZBA-11-2025), you must make a written request to the attention of Ian Search, Planner I, Municipality of Lakeshore, 419 Notre Dame Street, Belle River, Ontario, N8L 0P8, or email isearch@lakeshore.ca.
If A Person Or Public Body would otherwise have an ability to appeal the decision of the Municipality of Lakeshore to the Ontario Land Tribunal but the person or public body does not make oral submissions at a public meeting or make written submissions to the Municipal Clerk of the Municipality of Lakeshore before the proposed Zoning By-law Amendment is passed, the person or public body is not entitled to appeal the decision.
If A Person Or Public Body does not make oral submissions at a public meeting or make written submissions to the Municipal Clerk of the Municipality of Lakeshore before the proposed Zoning By-law Amendment is passed, the person or public body may not be added as a party to the hearing of an appeal before the Ontario Land Tribunal unless, in the opinion of the Tribunal, there are reasonable grounds to do so.
Dated at the Municipality of Lakeshore this October 29th, 2025.
Attachments:
Contact Us
Municipality of Lakeshore
419 Notre Dame St.
Belle River, Ontario N8L 0P8
Phone 519-728-2700
Email PublicService@Lakeshore.ca